For Sale US$375,000 - Pre-Construction, Villa & Houses
Discover this stunning contemporary villa located in an exclusive gated community just minutes from Sosúa, Cabarete, and the world-famous Encuentro surf beach. Designed with clean architectural lines and an open, airy layout, this property blends modern elegance with tropical living.
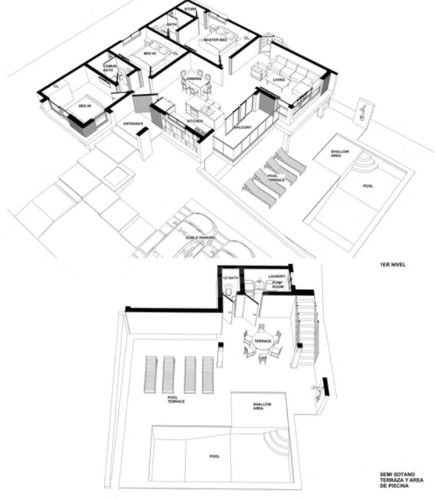
The villa features a thoughtfully designed floor plan with spacious bedrooms, modern bathrooms, and seamless indoor-outdoor living. Expansive glass doors open to generous terraces, creating a perfect flow between the interior spaces and the outdoor entertainment areas. The lower level offers a beautiful pool and sun terrace, ideal for relaxing, entertaining, or enjoying the lush green surroundings in total privacy.
Surrounded by tropical landscaping and set against a serene natural backdrop, this villa is perfect as a primary residence, vacation home, or income-producing rental property in one of the North Coast’s most desirable areas.

Community Features & Monthly Fees
- Monthly Villa Fees: US$260.00
- 24-hour security
- Garbage collection
- Outside lighting
- Generator electricity
- Water supply
- Maintenance of common areas and roads
- On-site staff
This property offers the perfect balance of tranquility, security, and proximity to beaches, dining, nightlife, and outdoor activities.
📞 Contact us today to schedule a visit or request more information.
Beach: 1.0Km



